- Woonoppervlakte
- Circa 86 m²
- Perceeloppervlakte
- Circa 93 m²
- Bouwjaar
- Gebouwd in 1977
- Aantal kamers
- 4 kamers (3 slaapkamers)
Please find English version below.
Zaans woongeluk aan het water!
Op een bijzondere plek in Zaandam, omringd door groen, rust en water, staat dit charmante woonhuis aan De Koopman. Hier geniet je van het echte Zaans woongeluk: een tuin aan vaar- en viswater, een autovrije straat met houten bruggetjes, speeltuintjes en grasveldjes – een idyllische plek om thuis te komen.
Dit huis met blauwe gevel biedt drie slaapkamers, een gezellige, uitgebouwde woonkamer met open keuken en een praktische fietsenberging. Dankzij de deels kunststof kozijnen, ramen én gevelbekleding is de woning bovendien onderhoudsvriendelijk. Binnen tref je een sfeervol, goed verzorgd interieur, maar laten we eerst de omgeving verkennen.
Wonen op een unieke locatie
De autovrije straatjes en bruggetjes zorgen voor een kindvriendelijke, rustige sfeer. Wandelaars, fietsers en spelende kinderen bepalen hier het straatbeeld. Vanuit je eigen tuin stap je zó in je bootje, kano of op je sup om de omgeving te verkennen.
Parkeren doe je eenvoudig op 2 nabijgelegen parkeerterreinen op nog geen 2 minuten lopen. De A7 en A8 liggen binnen handbereik, en met zo’n 8 kilometer zit je al op de Ring A10 richting Amsterdam. Op fietsafstand zijn supermarkten, speciaalzaken, scholen, sportclubs, medische voorzieningen én recreatiegebied ’t Jagersveld; alles is dichtbij.
INDELING:
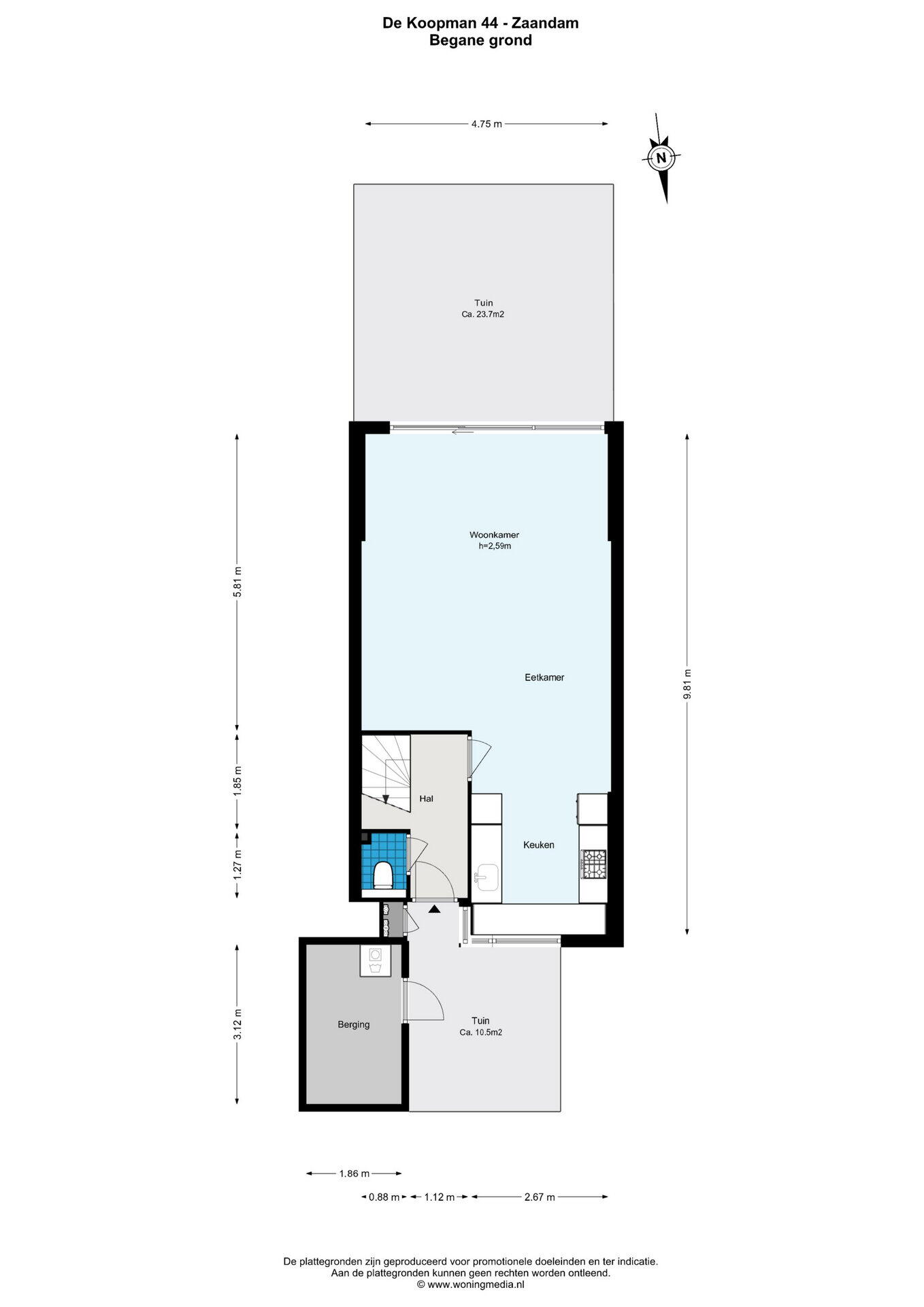
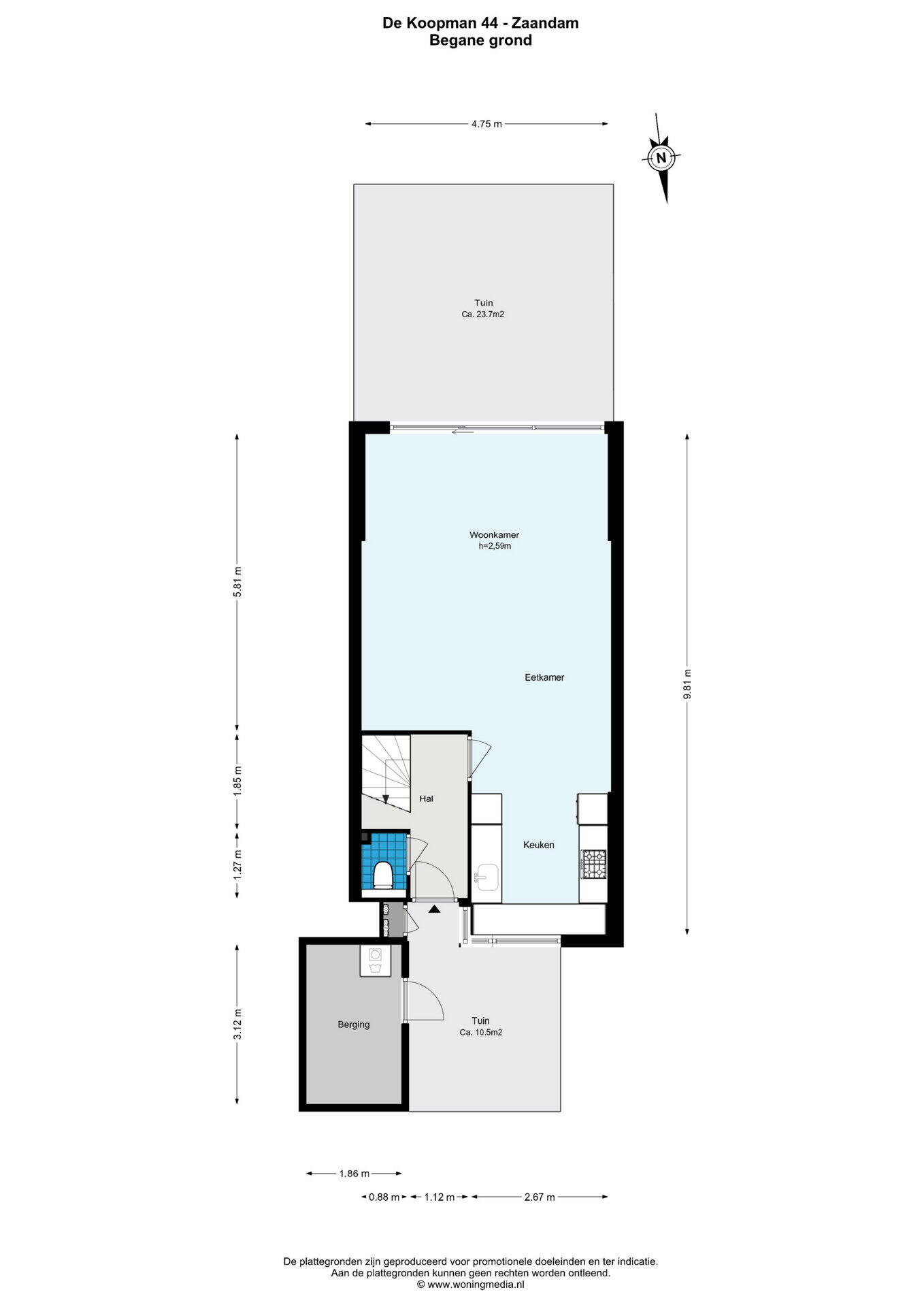
Begane grond
De volledig bestrate voortuin biedt een overdekte entree en een berging (ca. 6 m²) met elektra en aansluiting voor was- en droogmachine. Een ideale plek voor stallen van fietsen of sportspullen. Via de hal met toilet kom je in de lichte, uitgebouwde woonkamer met schuifpui naar de tuin gelegen op het Zuiden. De fraaie vloer met plavuizen en het vrije uitzicht op het water zorgen voor een warm en comfortabel gevoel. De woonkamer beschikt tevens nog over een airco.
De open moderne keuken is voorzien van een mooi werkblad, stijlvolle en moderne inbouwapparatuur als 5-pits gaskookplaat, afzuigkap, vaatwasser, combi-oven, koelkast en vriezer.
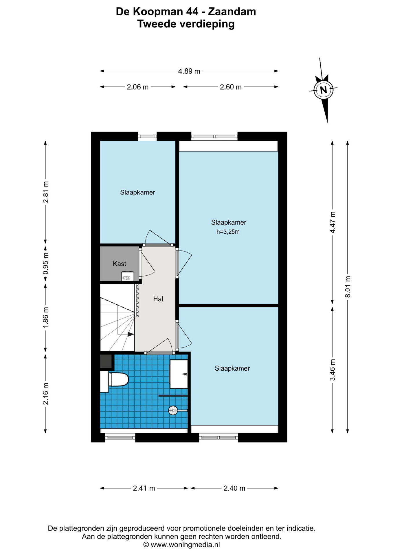
Eerste verdieping
De overloop geeft toegang tot drie slaapkamers, een handige inbouwkast met CV installatie (2022) en een moderne badkamer. De slaapkamers hebben speelse schuine daken en bieden een prettig ruimtelijk gevoel. De twee grotere slaapkamers beschikken over airco (warm/koud). De badkamer is modern en licht, voorzien van een inloopdouche, zwarte designradiator, toilet en fraai wastafelmeubel met spiegel.
Tuin
Via de schuifpui bereik je de zonnige tuin op het Zuiden met groot terras met vrij uitzicht. Geniet van privacy, rust en uitzicht op het water en groen aan de overzijde.
BIJZONDERHEDEN:
-Volle eigendom.
-Begane grondvloer geïsoleerd.
-Verwarming en warm water via HR-ketel (Intergas 2022).
-Uitbouw aan de achterzijde.
-Airco’s in woonkamer en 2 slaapkamers.
-Tuin aan vaarwater met nieuwe schoeiing.
-Energielabel C.
-Zonnepanelen aanwezig.
OPLEVERING:
Aanvaarding in huidige staat, leeg en ontruimd. De oplevering zal in nader overleg plaatsvinden.
NOTARIS EN OPLEVERING:
Het opstellen van de koopakte dient plaats te vinden bij een notariskantoor binnen 5 werkdagen na mondelinge overeenstemming.
Deze informatie is door ons met de nodige zorgvuldigheid samengesteld. Onzerzijds wordt echter geen enkele aansprakelijkheid aanvaard voor enige onvolledigheid, onjuistheid of anderszins, dan wel de gevolgen daarvan. Alle opgegeven maten en oppervlakten zijn conform de Meetinstructie.
Toelichtingsclausule NEN2580
De Meetinstructie is gebaseerd op de NEN2580. De Meetinstructie is bedoeld om een meer eenduidige manier van meten toe te passen voor het geven van een indicatie van de gebruiksoppervlakte. De Meetinstructie sluit verschillen in meetuitkomsten niet volledig uit, door bijvoorbeeld interpretatieverschillen, afrondingen of beperkingen bij het uitvoeren van de meting.
English version:
***This property is listed by an MVA Certified Expat Broker***
Zaan living happiness by the water
In a unique location in Zaandam, surrounded by greenery, tranquility, and water, stands this charming house on De Koopman. Here you can enjoy the true joy of living in the Zaan region: a garden overlooking waterways and fishing grounds, a car-free street with wooden bridges, playgrounds, and lawns – an idyllic place to come home to.
This house with its blue facade offers three bedrooms, a cozy, extended living room with an open-plan kitchen, and a practical bicycle shed. Thanks to some PVC window frames, windows and cladding, the house is also low-maintenance. Inside, you'll find an attractive, well-maintained interior, but let's first explore the surrounding area.
Living in a unique location
The car-free streets and bridges create a child-friendly, peaceful atmosphere. Pedestrians, cyclists, and playing children define the Street cape here. From your own garden, you can hop straight into your boat, canoe, or stand-up paddle board to explore the area.
Parking is easy at two nearby parking lots, less than a 2-minute walk away. The A7 and A8 motorways are within easy reach, and the A10 ring road towards Amsterdam is just 8 kilometers away. On cycling distance are supermarkets, specialty stores, schools, sports clubs, medical facilities, and the 't Jagersveld recreation area; everything is nearby.
LAYOUT:
Ground floor
The fully paved front garden offers a covered entrance and a storage shed (approx. 6 m²) with electricity and connections for a washing machine and dryer. An ideal place to store bicycles or sports equipment. Through the hall with toilet, you enter the bright, extended living room with sliding doors to the south-facing garden. The nice floor and the unobstructed view of the water create a warm and comfortable atmosphere. The open-plan, modern kitchen features a beautiful countertop, stylish and modern built-in appliances such as a 5-burner gas cook top, extractor hood, dishwasher, combination oven, refrigerator, and freezer.
First Floor
The landing provides access to three bedrooms, a convenient built-in wardrobe housing the central heating system (2022), and a modern bathroom. The bedrooms have playful sloping ceilings and offer a pleasant sense of space. The bathroom is modern and bright, equipped with a walk-in shower, black designer radiator, toilet, and a beautiful vanity with a mirror.
Garden
Through French doors, you reach the sunny garden with a large terrace offering unobstructed views. Enjoy privacy, tranquility, and views of the water and greenery across the street.
SPECIAL FEATURES:
- Freehold.
- Insulated ground floor.
- Heating and hot water via a high-efficiency boiler (Intergas 2022).
- Extension at the rear.
- Air conditioning units in the living room and two bedrooms.
-Waterfront garden with new sheet piling.
-Energy label C.-Solar panels available.
DELIVERY:
Acceptance in its current condition, empty and vacated. Delivery will take place in consultation.
NOTARY AND DELIVERY:
The purchase agreement must be drawn up at a notary's office within 5 business days of verbal agreement.
We have compiled this information with due care. However, we accept no liability for any incompleteness, inaccuracy, or otherwise, or the consequences thereof. All stated dimensions and surface areas are in accordance with the Measurement Instructions.
Explanatory clause NEN2580
The Measurement Instructions are based on NEN2580. The Measurement Instructions are intended to provide a more uniform measuring method for indicating the usable surface area. The Measurement Instructions do not completely rule out differences in measurement results, for example due to differences in interpretation, rounding or limitations in performing the measurement.
Overdracht
- Vraagprijs
- € 425.000 k.k.
- Status
- Beschikbaar
- Aanvaarding
- In overleg
Bouw
- Object type
- Eengezinswoning, tussenwoning
- Soort bouw
- Bestaande bouw
- Bouwjaar
- 1977
- Soort dak
- Zadeldak bedekt met pannen
Oppervlakte en inhoud
- Woonoppervlakte
- 86 m²
- Perceeloppervlakte
- 93 m²
- Inhoud
- 257 m³
- Externe bergruimte
- 6 m²
Indeling
- Aantal kamers
- 4 kamers (3 slaapkamers)
- Aantal badkamers
- 1 badkamer
- Badkamervoorzieningen
- Toilet, wastafelmeubel, inloopdouche
- Aantal woonlagen
- 2 woonlagen
- Voorzieningen
- Mechanische ventilatie, tv-kabel, airconditioning, schuifpui, zonnepanelen
Energie
- Energielabel
- C
- Energielabel registratie
- 08-01-2017
- Isolatie
- Dakisolatie, vloerisolatie, dubbel glas
- Verwarming
- Cv-ketel
- Warm water
- Cv-ketel
- Cv ketel
- Intergas combiketel gas gestookt uit 2022 (eigendom)
Buitenruimte
- Ligging
- Aan water, aan rustige weg, in woonwijk, aan vaarwater
- Tuin
- Achtertuin, voortuin
- Afmetingen achtertuin
- 24 m² (4.98 meter diep en 4.75 meter breed)
- ligging tuin
- Gelegen op het zuiden
Bergruimte
- Schuur / berging
- Aangebouwd steen
- Voorzieningen
- Voorzien van elektra, voorzien van water
Garage
- Soort garage
- Geen garage
Parkeergelegenheid
- Soort parkeergelegenheid
- Openbaar parkeren
Energieverbruik in Zaandam
Energielabel deze woning
Energielabel C
Publicatie energielabel: 08-01-2017
Stroomverbruik per jaar
(Gemiddelde tussenwoning in Zaandam)
Gasverbruik per jaar
(Gemiddelde tussenwoning in Zaandam)
* Cijfers zijn afkomstig van het CBS en bedoeld als indicatie en kunnen verschillen voor deze woning
Indicatie hypotheeklasten
Eigen inleg:
Spaargeld / overwaarde
Rente:
Laagste 10-jaars rente
Laagste 10-jaars rente
2,78% - Centraal Beheer Groen... - NHG
3,04% - Centraal Beheer Groen... - 80%
Laagste 20-jaars rente
3,29% - Centraal Beheer Groen... - NHG
3,52% - Centraal Beheer Groen... - 80%
Laagste 30-jaars rente
3,41% - Centraal Beheer Groen... - NHG
3,7% - Argenta Groen Hypotheek... - 80%
Hypotheek:
Bruto maandlasten: € 0 p/m
Netto maandlasten: € 0 p/m
Hoe berekenen we dit?
Het rentepercentage is gebaseerd op de laagste 10 jaars vaste rente voor één hypotheekdeel. De vermelde rente (3.04% zonder NHG) is gecontroleerd op 27-02-2026. Deze berekening is gebaseerd op een annuïteitenhypotheek die volledig wordt afgelost, waarbij de maandlasten gedurende de gehele looptijd gelijk blijven. De werkelijke rente en netto maandlasten kunnen variëren, afhankelijk van uw persoonlijke situatie en de hypotheekverstrekker. Raadpleeg een financieel adviseur voor een nauwkeurige berekening en advies. Aan deze berekening kunnen geen rechten worden ontleend; het dient enkel als indicatie.
Documentatie
Kadastrale kaart
Leefomgeving
WOZ waarderapport
BAG uittreksel
Brochure
Plattegronden PDF
Bekijk onze website
Bezichtiging
Bod uitbrengen
Waardebepaling
Zoekopdracht
Alles downloaden
Zonnegrenzen bekijken
Inwoners in Zaandam
Cijfers voor postcodegebied 1509
- Totaal aantal inwoners
- 6525 inwoners
- Mannen
- 50%
- Vrouwen
- 50%
Inwoners in Zaandam
Cijfers voor postcodegebied 1509
- tot 15 jaar
- 13%
- 15 tot 25 jaar
- 10%
- 25 tot 35 jaar
- 21%
- 45 tot 65 jaar
- 28%
- 65 en ouder
- 29%
Huishoudens in Zaandam
Cijfers voor postcodegebied 1509
- Eenpersoons zonder kinderen
- 35%
- Meerpersoons zonder kinderen
- 33%
- Huishoudens zonder kinderen
- 68%
Huishoudens in Zaandam
Cijfers voor postcodegebied 1509
- Huishoudens met één kind
- 7%
- Huishoudens met meerdere kinderen
- 24%
- Huishoudens met kinderen
- 31%
Woningen in Zaandam
Cijfers voor postcodegebied 1509
- Woningen voor 1945
- 6%
- Woningen tussen 1945 en 1965
- 1%
- Woningen tussen 1965 en 1975
- 4%
- Woningen tussen 1975 en 1985
- 82%
- Woningen tussen 1985 en 1995
- 5%
Woningen in Zaandam
Cijfers voor postcodegebied 1509
- Woningen tussen 1995 en 2005
- 1%
- Woningen tussen 2005 en 2015
- 1%
- Woningen na 2015
- 1%
- Huurwoningen
- 40%
- Koopwoningen
- 60%
Overige in Zaandam
Cijfers voor postcodegebied 1509
- Gemiddelde WOZ waarde
- € 266.000,-
- Personen onder de 65 met uitkering
- 8%
Overige in Zaandam
Cijfers voor postcodegebied 1509
- Adressen per km²
- 965
- Stedelijkheid (schaal 1 op 5)
- 40%
Tel Krop Makelaars
Indien u vragen heeft of u wilt een bezichtiging inplannen, dan kunt u gebruik maken van het formulier hiernaast. Er zal daarna op korte termijn contact met u worden opgenomen.
Buitenveldertselaan 101
1082 VB, Amsterdam
020 - 428 0801 info@telkropmakelaars.nl www.telkropmakelaars.nlContact opnemen
Waarom Tel Krop Makelaars?
Bij elk makelaarskantoor mag men een zekere mate van expertise en professionaliteit verwachten; echter, de makelaars van Tel Krop Makelaars B.V. onderscheiden zich door hun inventiviteit, creativiteit en nuchtere verstand te combineren met deze kerncompetenties. Met een indrukwekkende staat van dienst van meer dan 90 jaar in de regio Groot-Amsterdam, weten onze makelaars precies hoe ze aan de unieke behoeften van elke klant kunnen voldoen en deze op originele wijze vervullen.
Of u nu op zoek bent naar advies, begeleiding bij aan- en verkoop, investeringsmogelijkheden, taxaties of bijzondere objecten, ons dynamische kantoor in Buitenveldert staat klaar om uw woonideeën tot leven te brengen. Wij zetten ons in om ieder verzoek nauwkeurig te analyseren en een gepersonaliseerde aanpak te bieden die past bij uw wensen en verwachtingen. Ons team van ervaren makelaars is altijd op de hoogte van de laatste ontwikkelingen in de vastgoedmarkt en past deze kennis toe om u de best mogelijke service te bieden.
Nieuwste reviews
-
nadine schottert
Monique heeft me super goed geholpen met de verkoop van mijn studio. Ze voelde heel goed aan wat ik nodig had en kon snel schakelen toen de...
-
Monica Vargas
Ik ben ontzettend blij met de service van Tel Krop Makelaars, met name met Monique's professionaliteit, eerlijkheid en aandacht om ervoor te...
-
Serena Westra
Heel fijn geholpen door Monique. Ze heeft veel expertise en ook een goede portie nuchterheid, wat erg fijn is bij het zoeken van een huis in...